
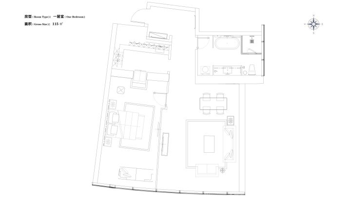
北京佳兆业铂域行政公寓位于北京市朝阳区建国路86号佳兆业广场南楼,现有特价豪华一居室出租,户型建筑面积115平米,一室一厅一厨一卫,东南向。本户型目前有特价促销活动,原价32000元/月,现价26000元/月,本价格限租期一年的客人。租期不足一年,租金32000元/月。目前仅剩少量住房,先到先得。
24小时前台管家服务、1居室包含每月800元能源费(水和电)、供暖、宽带、卫星电视、每周两次室内深度清洁+更换床品、免费健身房、桑拿房、儿童游戏室等配套设施、增值税发票。停车位:1700元/月。
双人床,床上用品,大衣柜,卫浴用具,沙发,餐桌,液晶电视机,卫星电视,冰箱,洗衣机,烘干机,厨房用具,电磁炉,微波炉,独立冷暖空调,过滤PM2.5的新风系统,WIFI等。每周2次换洗床品+室内深度清洁,24小时安保客服,24小时免费冷热水。
佳兆业铂域行政公寓115平米一居室室内实景图↓





需要了解更多北京佳兆业铂域行政公寓的租房信息,欢迎致电:13681133751,我们将竭诚为您服务!